Hybrid - On-Site + Modular Custom Home
3
Bedrooms
3
Bathrooms
2,086 + 684 sq ft decks
Living Sq Ft
2,591
Total Sq Ft
September 2025
Certificate of Occupancy
$1,122,919 ($433/sq ft)
All-In Cost Estimate
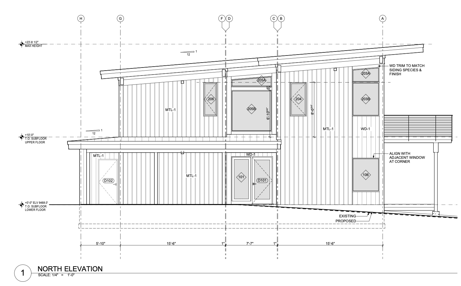
Custom Build, Hybrid Delivery.
Project Highlights
This beautiful home was partially site-built using traditional stick-framing methods for the garage and first floor. Then we set two modular boxes (fully finished on the inside!) on top before finishing the roof and a stairway/hallway. Includes a 506 sq ft garage.
Explore Our Services
Lot & Land Consultation
+ read more
Design Build Services
+ read more
Custom Home Building
+ read more
Multi-Unit & Condo Construction
+ read more
ADU (Accessory Dwelling Unit) Construction
+ read more
Garage & Home Additions
+ read more
Remodels & Home Improvement
+ read more
Modular & Hybrid Home Construction
+ read more
Why homeowners trust S&T Construction
As Buena Vista locals, we understand the terrain, climate, and permitting process unique to Chaffee, Lake, and Park Counties.
Our Design-Build service option integrates planning, design, and construction for a streamlined experience.
Clients stay informed through every step, with honest feedback and proactive updates.
We collaborate closely with realtors and sub-consultants who share our standards of integrity and quality.
Ready to Build Your Colorado Dream Home?
Whether you’re designing your retirement retreat, expanding your living space, or developing multi-unit housing, S&T Construction brings the expertise, transparency, and care to make it happen.
