3
Bedrooms
3.5
Bathrooms
2,277
Living Square Feet
2,277
Total Square Feet
TBD 2026
Certificate of Occupancy
$808,000 ($354/sq ft)
All-In Cost Estimate
Modern Custom Design with Built-In Opportunity
Project Highlights
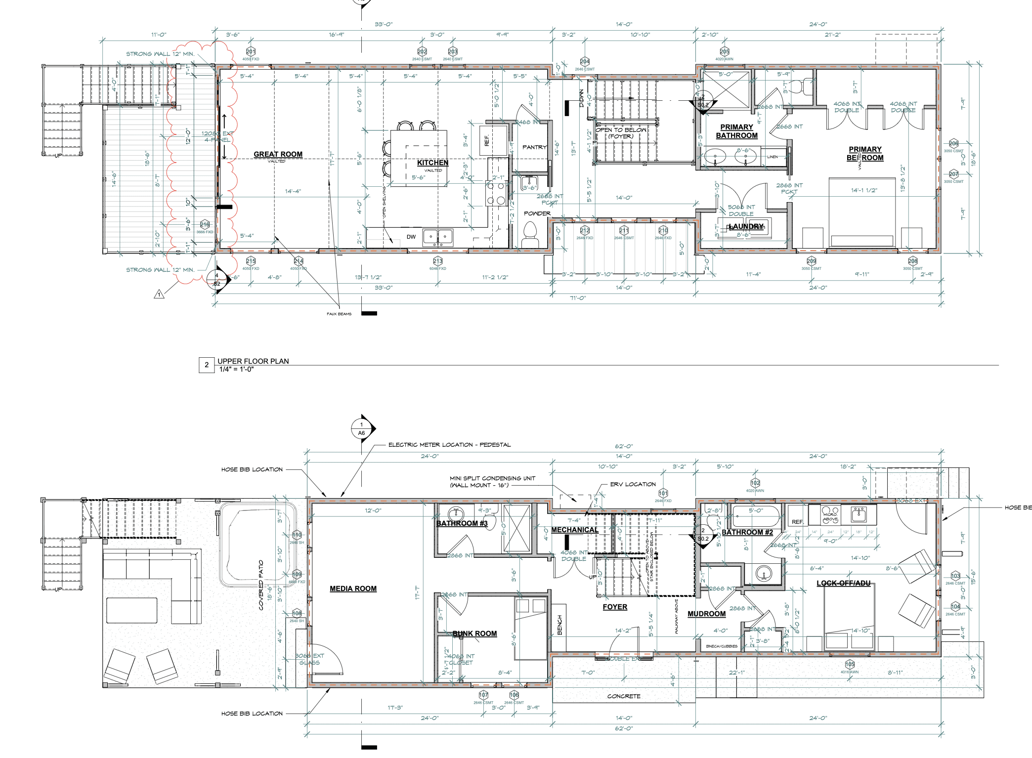
Complementing this new home build is a first-level lock-off ADU situated at the front of the house, providing incredible flexibility for guests or rental income without compromising the main home’s footprint.
The heart of the home is located on the second level, where an open-concept living space transitions seamlessly to a spacious walk-out deck. This “reverse living” layout maximizes natural light and views, creating an airy, treehouse-like atmosphere for daily life, while the private hot tub patio below offers a secluded retreat for year-round relaxation.
Explore Our Services
Lot & Land Consultation
+ read more
Design Build Services
+ read more
Custom Home Building
+ read more
Multi-Unit & Condo Construction
+ read more
ADU (Accessory Dwelling Unit) Construction
+ read more
Garage & Home Additions
+ read more
Remodels & Home Improvement
+ read more
Modular & Hybrid Home Construction
+ read more
Why homeowners trust S&T Construction
As Buena Vista locals, we understand the terrain, climate, and permitting process unique to Chaffee, Lake, and Park Counties.
Our Design-Build service option integrates planning, design, and construction for a streamlined experience.
Clients stay informed through every step, with honest feedback and proactive updates.
We collaborate closely with realtors and sub-consultants who share our standards of integrity and quality.
Ready to Build Your Colorado Dream Home?
Whether you’re designing your retirement retreat, expanding your living space, or developing multi-unit housing, S&T Construction brings the expertise, transparency, and care to make it happen.
